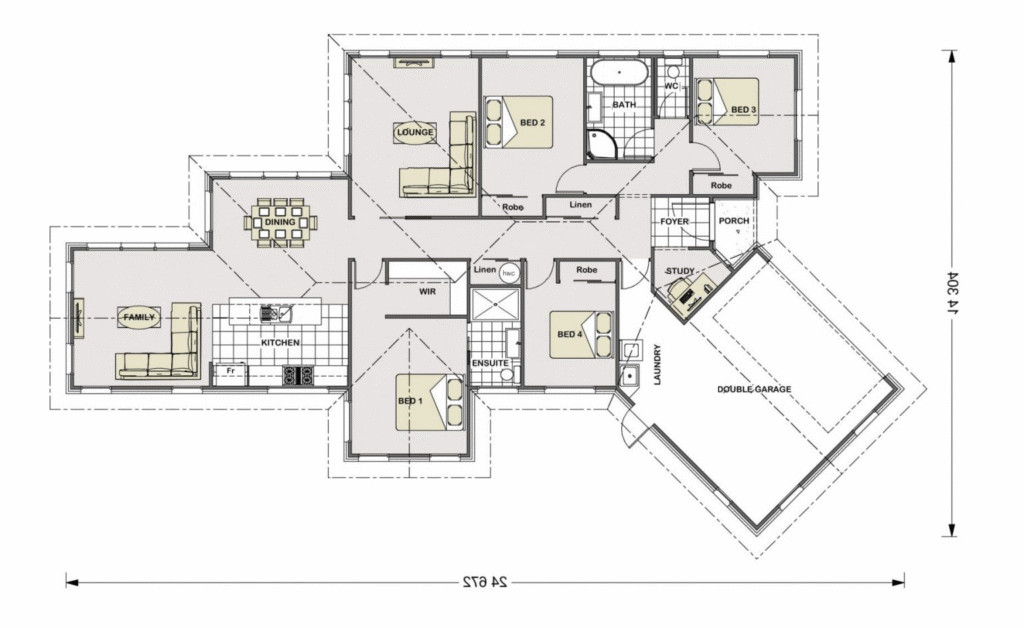
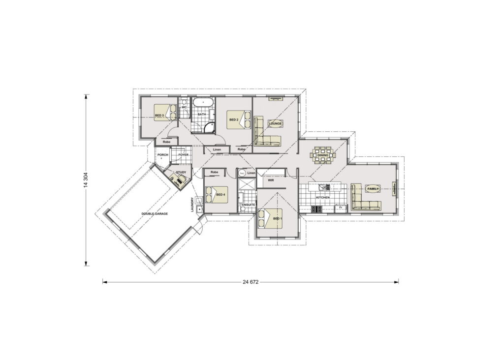
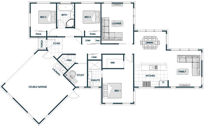
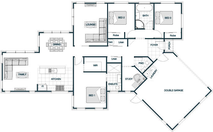
Richmond Bay Gable
Richmond Bay Spacious Interiors, Elegant Exteriors
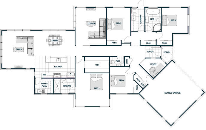
Embracing classic architectural charm, the Richmond Bay Gable Roof plan features a traditional pitched roof that adds character and visual interest to the home's exterior. Inside, the layout offers a spacious open-plan living area that connects the kitchen, dining, and lounge, fostering a sense of openness and connectivity. The bedrooms are thoughtfully positioned, with the master suite benefiting from an ensuite bathroom for added convenience. The gable roof design not only elevates the home's curb appeal but also allows for vaulted ceilings, enhancing the sense of space within.




