Pine Grove 91 Gable 2.0
Pine Grove Gable Compact and Practical Living
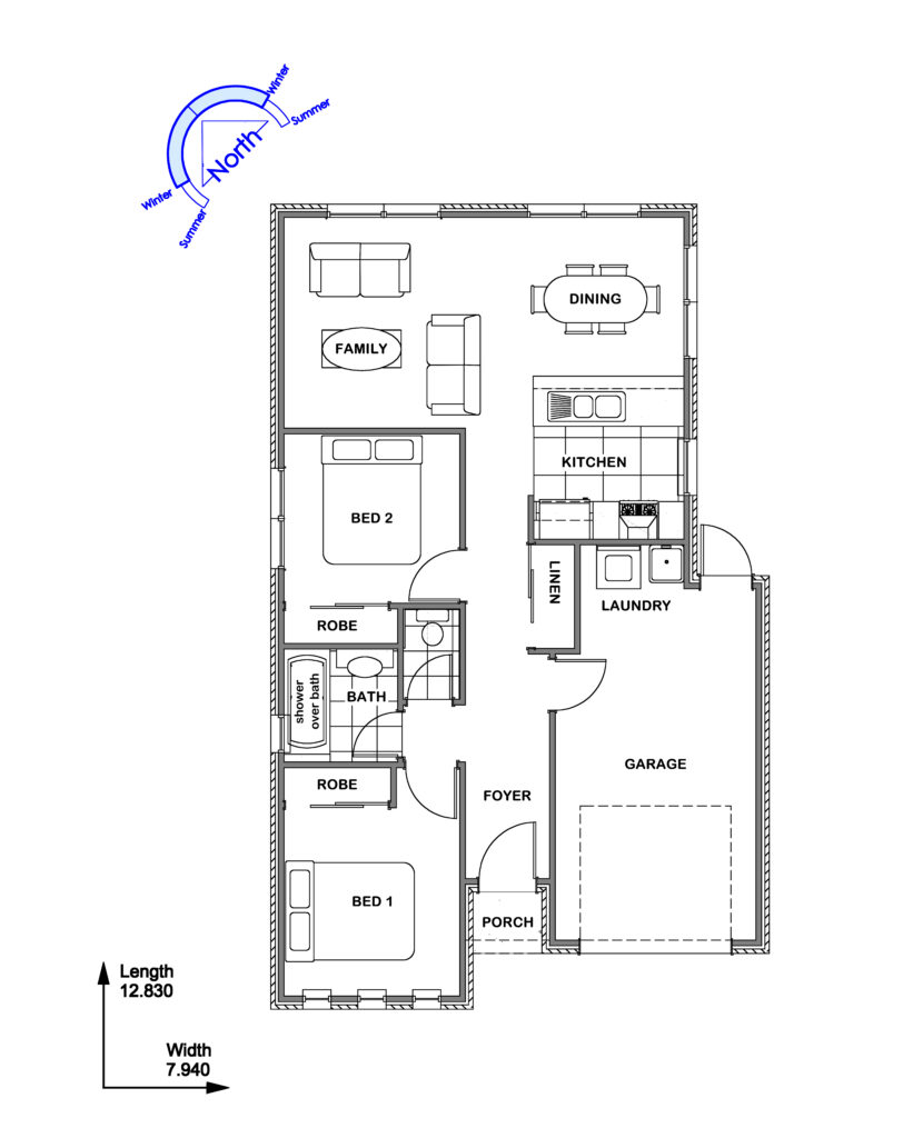
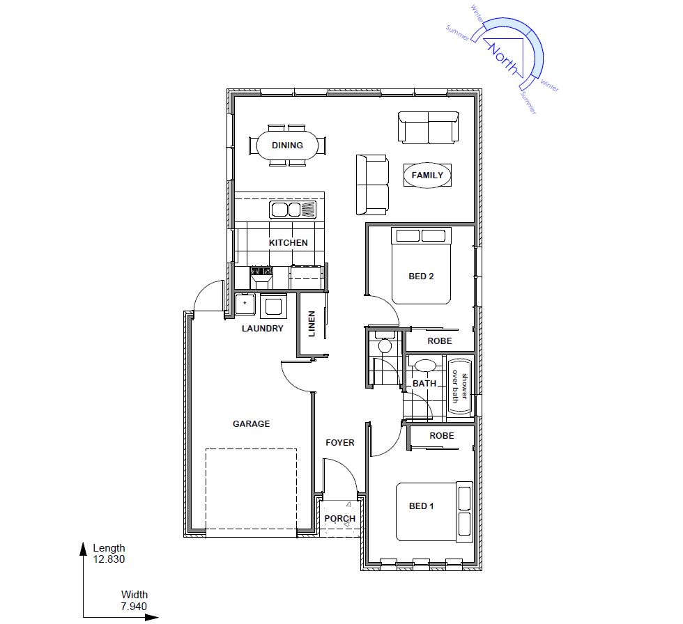
The Pine Grove 91 Gable is a compact 91m home designed for functionality and comfort on smaller sites. Its classic gable roofline enhances street appeal, while the interior features two bedrooms, a separate WC, and a garage for added convenience. The open-plan living area maximises natural light, creating a spacious feel despite the compact footprint. Ideal for couples, downsizers, or as a holiday home, this design offers customisable finishes to reflect your lifestyle, blending practicality with timeless style.
Sizes(sqm)
2
1
1
1




