Pavillion Gable
Pavillion Modern Elegance
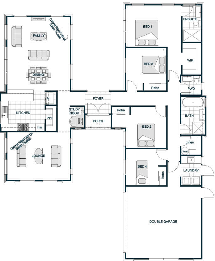
Our architects have developed this smart home with two separate and distinct wings. Formal and family lounges are positioned either side of a classic kitchen in one wing master and family bedrooms complete the other. A discreet study nook, separate laundry and separate laundry are also included
Sizes(sqm)
4
2.5
1
2
4
2.5
1
2
4
2.5
1
2
3
2.5
1
2




