Outlook Mono
Outlook Mono Designed for Family, Built for Lifestyle
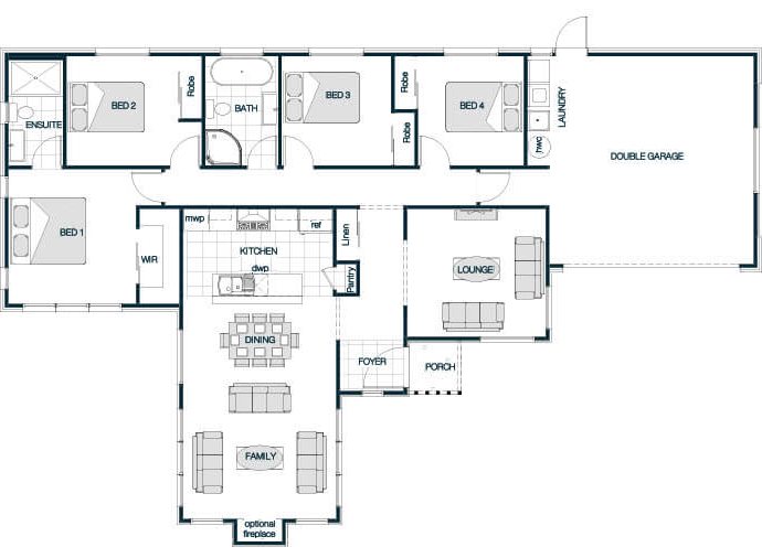
The Outlook Mono is a spacious and modern home designed to maximize comfort, light, and connection to the outdoors. With a total floor area of approximately 220m , it includes 4 bedrooms, 2 bathrooms, and a double garage, making it ideal for growing families or those who love to entertain. The Mono roof line adds a feeling of space and drama to the homes living spaces.
Sizes(sqm)
4
2.5
1
2
4
2.5
1
2
4
2
1
2
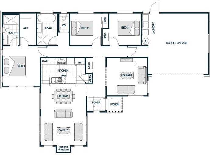
3
2.5
1
2




