Outlook Gable
Outlook Gable Designed for Family, Built for Lifestyle
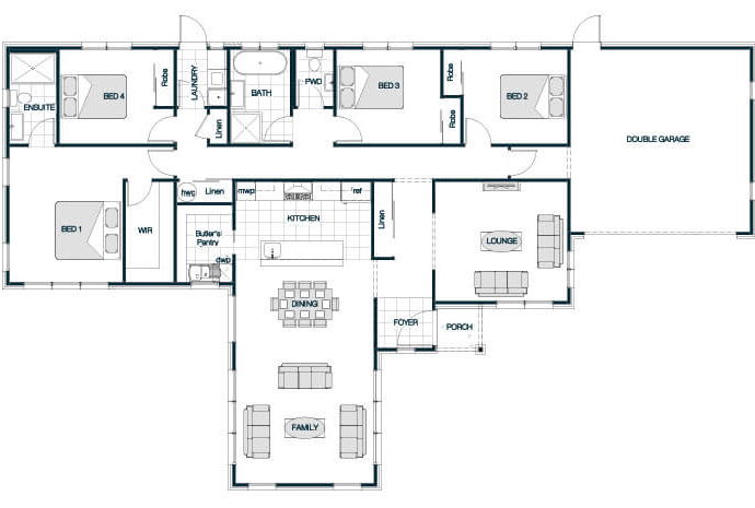
The Outlook Gable is a spacious and modern home designed to maximize comfort, light, and connection to the outdoors. With a total floor area of approximately 220m, it includes 4 bedrooms, 2 bathrooms, and a double garage, making it ideal for growing families or those who love to entertain.
Sizes(sqm)
4
2.5
1
2
4
2.5
1
2
4
2
1
2
3
2.5
1
2




