Medbury Gable
Medbury Modern Edge, Classic Comfort
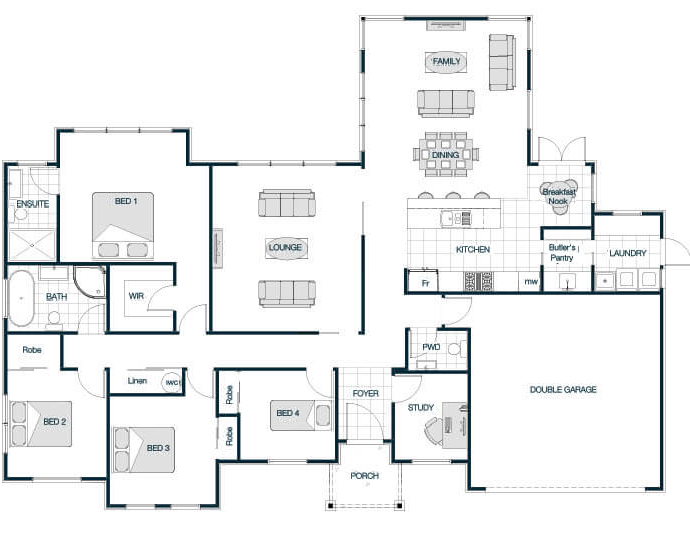
With its classic pitched roof, the Medbury Gable Roof plan brings traditional warmth combined with modern practicality. Vaulted ceilings in key areas elevate the sense of space and light, creating an inviting atmosphere throughout. The layout is thoughtfully designed with multiple living zones and generously sized bedrooms, making it ideal for families who value both comfort and style. The timeless gable roof adds character and charm to this beautifully balanced home.
Sizes(sqm)
4
2.5
1
2
4
2.5
1
2
4
2.5
1
2
3
2.5
1
2




