Mayfair Hip
Mayfair Stylish Design, Family Friendly
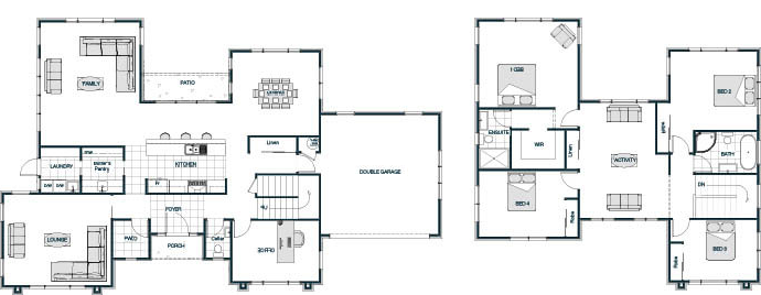
he Mayfair Hip Roof plan boasts a durable four-sided roof that complements its thoughtful, spacious interior layout. Designed to provide shelter and elegance, this roofline pairs beautifully with open-plan living spaces and multiple bedrooms. The hip roof enhances curb appeal and offers resilience against the elements, making this plan a practical and stylish choice for lasting family living.
Sizes(sqm)
4
2.5
2
2
4
2.5
2
2
4
2.5
2
2
4
2.5
2
2




