Maple 106 Hip 2.0
Maple Hip Efficient Living with Classic Style
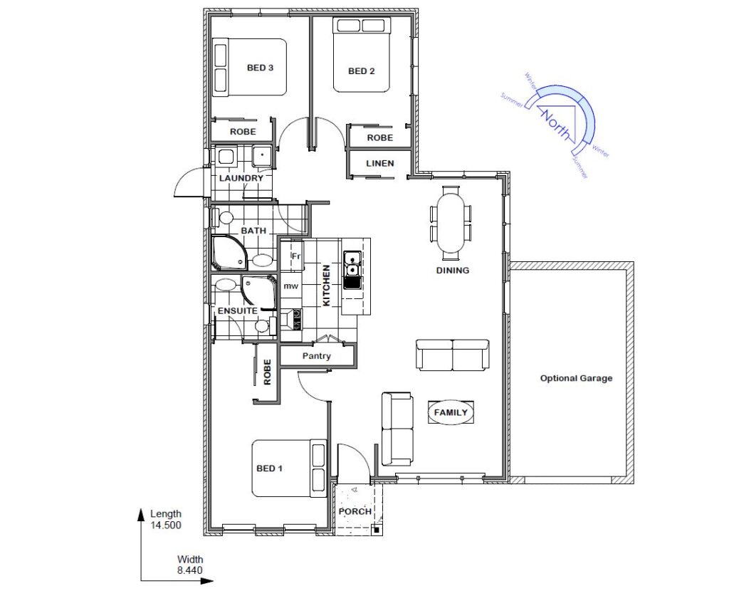
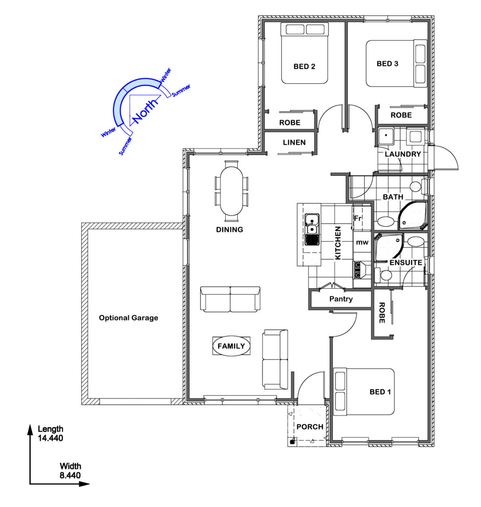
The Maple 106 Hip is a compact 106m home designed for modern lifestyles, featuring a classic hip roofline for durability and aesthetic appeal. With two bedrooms, two bathrooms (including a separate WC), and a separate laundry, this home maximizes every square meter. The optional garage adds practicality, while the open-plan living area is filled with natural light, creating a spacious feel. Perfect for couples, small families, or as a holiday home, the Maple Hip offers customisable finishes to suit your style and needs.
Sizes(sqm)
3
2
1
1



