Elevate Mono
Elevate Streamlined Style, Open Living
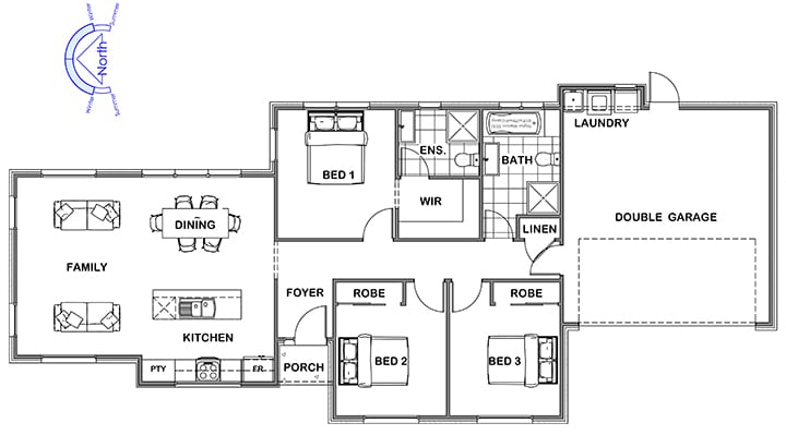
The Mono roof gives the Elevate a crisp, modern silhouette ideal for contemporary neighbourhoods. Inside, natural light pours into the open-plan kitchen, living, and dining area, creating an airy heart to the home. A separate lounge offers flexibility for work or relaxation, while the master suite at the rear provides peaceful separation from the two front bedrooms.
Sizes(sqm)
3
2
1
2




