Elevate Hip
Elevate Streamlined Style, Open Living
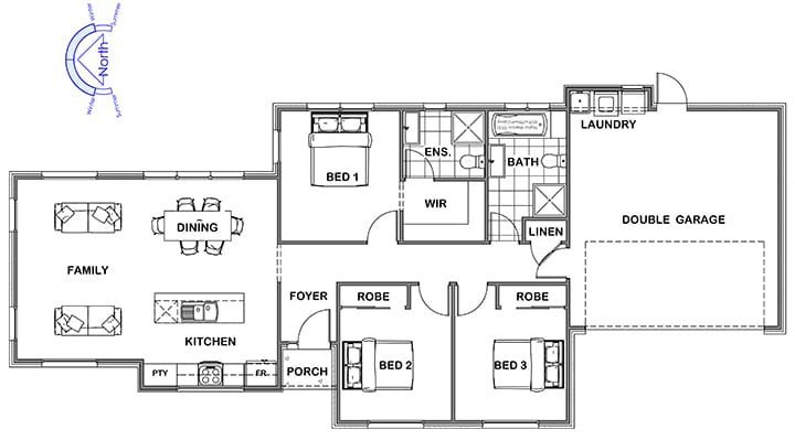
With its softly pitched Hip roof, the Elevate presents a harmonious street appeal that feels instantly welcoming. The floor plan blends everyday practicality with subtle zoning: communal living spaces are centrally placed, while bedrooms are thoughtfully spaced for privacy. A separate lounge near the entrance adds versatility for families or guests.
Sizes(sqm)
3
2
1
2




