Elevate Gable
Elevate Streamlined Style, Open Living
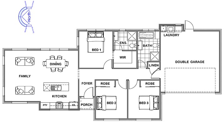
The Gable version of the Elevate makes a striking first impression with its defined roof peaks and strong architectural lines. Inside, raked ceilings enhance volume and light in the main living zone. The kitchen anchors the space with effortless access to indoor and outdoor areas, and the master suite offers a tranquil retreat at the rear of the home.
Sizes(sqm)
3
2
1
2




