Dunes Gable
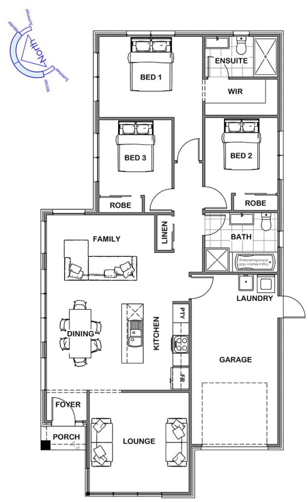
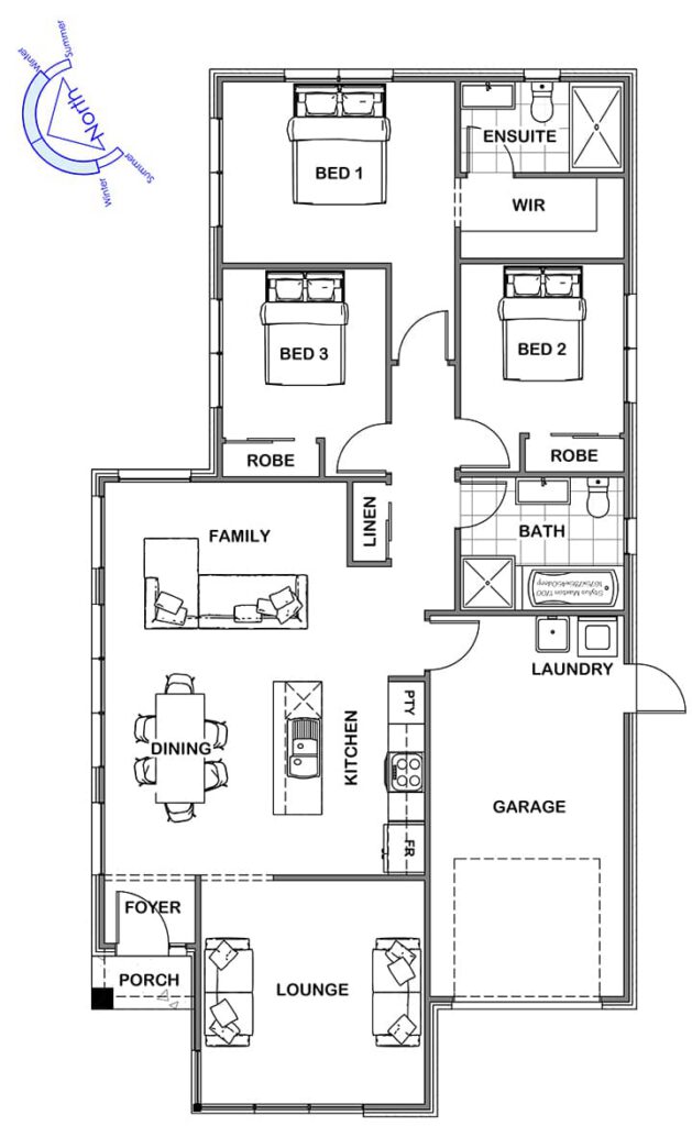
The Dunes Where Minimal Meets Functional
Designed to encompass side style entry to the home, the Dunes features clean crisp lines to zone and compartmentalise the home.The foyer opens to the central sun soaked main living area and galley style kitchen, while just besides lies a private lounge for the perfect escape. 3 generous bedrooms including the master suite are located at the rear along with the family bathroom providing a value packed family home that stands out from the crowd.
Sizes(sqm)
3
2
1
1




