Corso Hip
Corso Comfortably Compact, Surprisingly Spacious
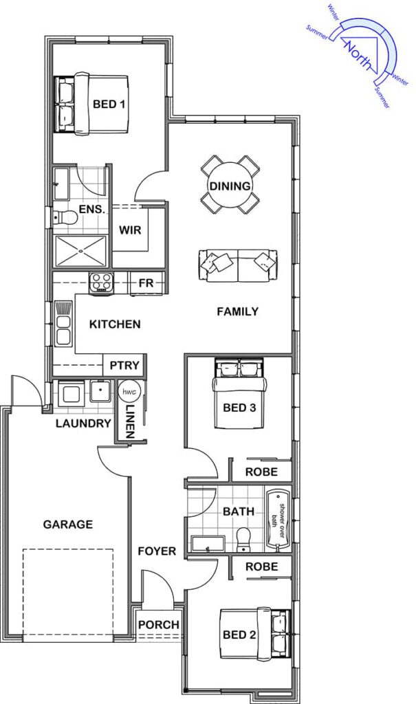
The Corso is a compact home with a clever layout that maximises every square metre. A combination of gable and hip rooflines adds a classic touch with modern appeal. Inside, the central kitchen connects seamlessly to open-plan living and dining, creating a warm, social hub. The master suite is privately positioned at the rear, while two additional bedrooms are tucked away at the frontóideal for families or downsizers. A perfect match for narrow or compact sites without compromising comfort.
Sizes(sqm)
3
2
1
1




