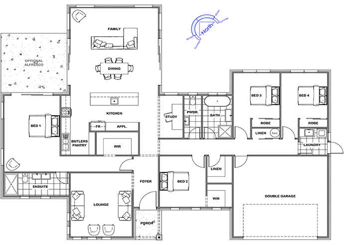
Chadwick 2.0 Mono
A home with all the trimmings, in the Chadwick you can be as sociable or private as you like. A huge master bedroom is the perfect parent retreat, and coupled with a spacious kitchen make entertaining effortless.
4
3
2




