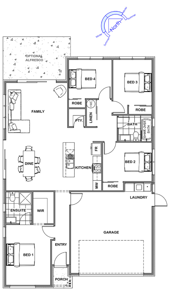
Avon 2.0 Hip
Available in 2 - 4 bedroom options, the Avon, with its clean lines and beautiful open plan living, comes standard with all the trimmings. Explore this design today.
4
2
1
2




