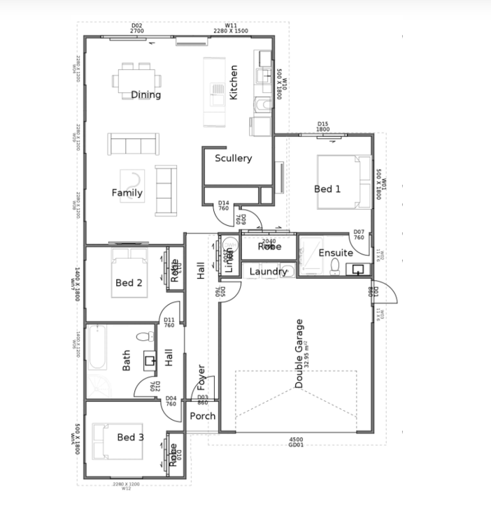
Your Dream Home Awaits in Taupō
From $910,000
Richmond Heights, Taupō, Taupō
Sally Chiplin - 0272961523
House Size 152m2
Property Size 518m2
3
2
1
2




