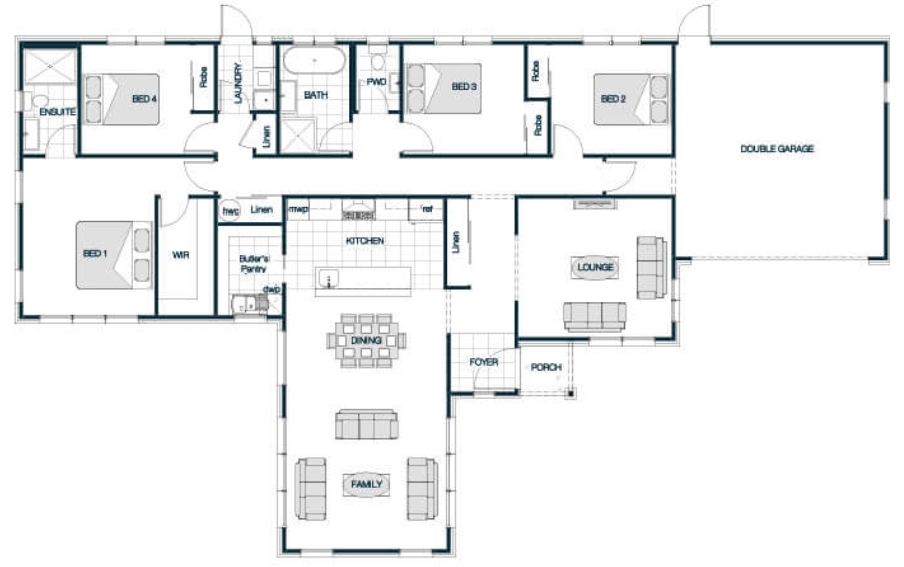
Where Modern Style Meets Everyday Comfort - A Te Awamutu Home to Love
From $1,090,000
Lot 14, Greenhill Drive, Te Awamutu
Margaret Kirk - 0272811220
House Size 180m2
Property Size 580m2
4
2
2




