Stylish, Easy - Care Living - Turn Key Package!!

From $850,000

Address 357 Church Street, Timaru, Canterbury
Phone Number Karl Winter - 0276964440
House Size 175m2
Property Size 397m2
3
2
4

Stylish, Easy - Care Living - Turn Key Package!!

Stylish, Comfortable Living on Church Street.

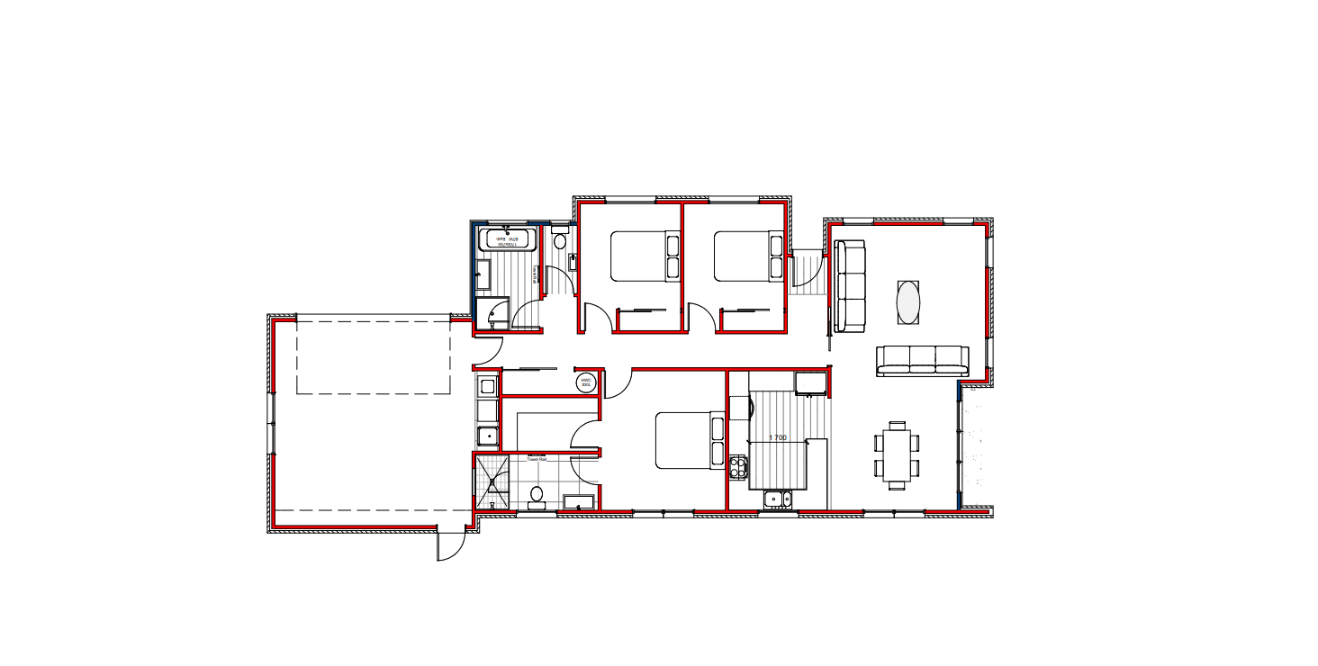
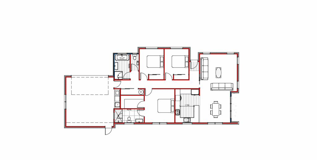
Step into a bright and spacious open-plan kitchen, dining, and lounge area designed for effortless everyday living. The large modern kitchen is perfectly appointed for all your culinary creations, while sliding doors off the dining space open to a sunny outdoor area – ideal for relaxing or entertaining. A centrally located Daikin ducted heat pump system ensures year-round comfort throughout the home.

The master bedroom offers a peaceful retreat with a generous walk-in wardrobe and private luxury ensuite. Two additional bedrooms share a stylish family bathroom and a separate toilet, making this the perfect layout for families or guests. Thoughtful design details enhance the home’s practicality – including a hallway storage cupboard to keep clutter out of sight.

The laundry nook is neatly tucked away in the fully insulated and carpeted double garage, providing a warmer, more versatile space. Built to last, this home combines timeless brick and feature Linea cladding, blending modern style with long-term durability.

With a fixed-price contract, you can move forward with confidence knowing there are no hidden costs or surprises. Even better, all hard landscaping is included – paths, patios, internal fencing, letterbox, and clothesline are ready for you from day one. Simply move in and start enjoying your new home.

Key Features:

  • 10% deposit – balance on completion
  • Landscaping included – move in and enjoy from day one
  • Three generous bedrooms, including master with ensuite and walk-in wardrobe
  • Full main bathroom plus separate toilet
  • Double garage with internal access (insulated and carpeted)
  • Daikin ducted heat pump for all-year comfort
  • Quality Bosch appliances
  • Built with a fixed-price contract for peace of mind

Location: Set in the sought-after West End / Highfield area, you’ll love the convenience of being close to supermarkets, schools, parks, sports stadiums, and the city centre.

Estimated Completion: March 2026

For more information, contact the friendly team at Stonewood Homes South Canterbury today and discover how you can make this stunning property your new home.

Stylish, Easy - Care Living - Turn Key Package!!

Stylish, Comfortable Living on Church Street.

Step into a bright and spacious open-plan kitchen, dining, and lounge area designed for effortless everyday living. The large modern kitchen is perfectly appointed for all your culinary creations, while sliding doors off the dining space open to a sunny outdoor area – ideal for relaxing or entertaining. A centrally located Daikin ducted heat pump system ensures year-round comfort throughout the home.

The master bedroom offers a peaceful retreat with a generous walk-in wardrobe and private luxury ensuite. Two additional bedrooms share a stylish family bathroom and a separate toilet, making this the perfect layout for families or guests. Thoughtful design details enhance the home’s practicality – including a hallway storage cupboard to keep clutter out of sight.

The laundry nook is neatly tucked away in the fully insulated and carpeted double garage, providing a warmer, more versatile space. Built to last, this home combines timeless brick and feature Linea cladding, blending modern style with long-term durability.

With a fixed-price contract, you can move forward with confidence knowing there are no hidden costs or surprises. Even better, all hard landscaping is included – paths, patios, internal fencing, letterbox, and clothesline are ready for you from day one. Simply move in and start enjoying your new home.

Key Features:

  • 10% deposit – balance on completion
  • Landscaping included – move in and enjoy from day one
  • Three generous bedrooms, including master with ensuite and walk-in wardrobe
  • Full main bathroom plus separate toilet
  • Double garage with internal access (insulated and carpeted)
  • Daikin ducted heat pump for all-year comfort
  • Quality Bosch appliances
  • Built with a fixed-price contract for peace of mind

Location: Set in the sought-after West End / Highfield area, you’ll love the convenience of being close to supermarkets, schools, parks, sports stadiums, and the city centre.

Estimated Completion: March 2026

For more information, contact the friendly team at Stonewood Homes South Canterbury today and discover how you can make this stunning property your new home.

"*" indicates required fields

Select up to three products to compare.