Stunning House & Land Package in Opotiki, NZ – Build with Stonewood Homes!

From $699,500

Address 38 Pirirakau Rd, Opotiki, Ōpōtiki
Phone Number Sally Chiplin - 0272961523
House Size 160m2
Property Size 500m2
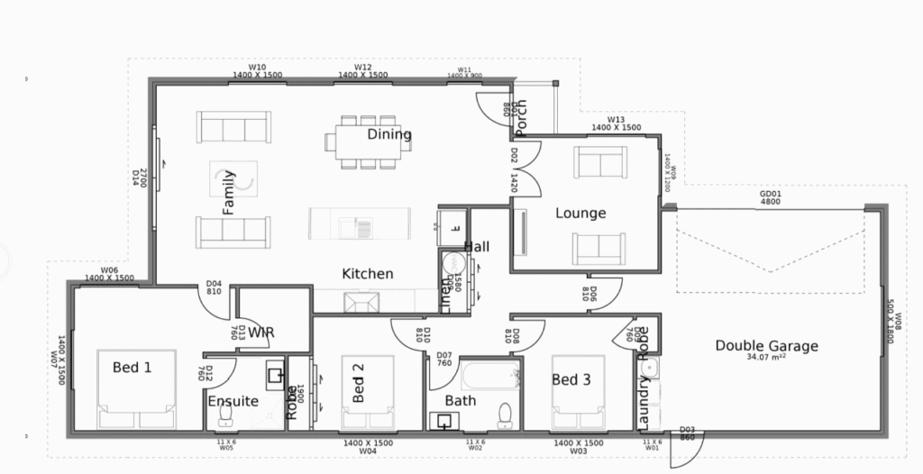
3
2
1
2

Stunning House & Land Package in Opotiki, NZ – Build with Stonewood Homes!

Looking for your dream home just moments from the coast? This brand-new 3-bedroom, 2-bathroom house and land package in Opotiki could be yours!

Opotiki is a charming town nestled in the beautiful Bay of Plenty, offering the perfect blend of serene living and outdoor adventure. The stunning beaches, including the famous Ohope Beach, are just a short drive away, making it an ideal location for beach lovers and water enthusiasts. Whether you’re into kayaking, swimming, fishing, or relaxing by the water, Opotiki has it all.

Stonewood Homes offers over 30 years of experience, building high-quality, affordable homes across New Zealand. We are known for our attention to detail, commitment to excellence, and a customer-first approach that ensures your home is built with care and expertise. When you choose Stonewood Homes, you are choosing peace of mind, with a trusted brand that delivers homes designed for modern living, energy efficiency, and lasting value.

Key Features:

* 3 Spacious Bedrooms
* 2 Stylish Bathrooms
* Modern Open-Plan Living
* Premium Fixtures & Fittings
* Quality Land in a Prime Location
* Close to Beautiful Beaches & Water Activities

Build with New Zealand’s Trusted Home Builder – Stonewood Homes

Ready to make Opotiki your home by the beach? Call Sally on 027 296 1523 now to find out exactly what this fantastic package includes and how we can make your dream coastal home a reality with Stonewood Homes!

Stunning House & Land Package in Opotiki, NZ – Build with Stonewood Homes!

Looking for your dream home just moments from the coast? This brand-new 3-bedroom, 2-bathroom house and land package in Opotiki could be yours!

Opotiki is a charming town nestled in the beautiful Bay of Plenty, offering the perfect blend of serene living and outdoor adventure. The stunning beaches, including the famous Ohope Beach, are just a short drive away, making it an ideal location for beach lovers and water enthusiasts. Whether you’re into kayaking, swimming, fishing, or relaxing by the water, Opotiki has it all.

Stonewood Homes offers over 30 years of experience, building high-quality, affordable homes across New Zealand. We are known for our attention to detail, commitment to excellence, and a customer-first approach that ensures your home is built with care and expertise. When you choose Stonewood Homes, you are choosing peace of mind, with a trusted brand that delivers homes designed for modern living, energy efficiency, and lasting value.

Key Features:

* 3 Spacious Bedrooms
* 2 Stylish Bathrooms
* Modern Open-Plan Living
* Premium Fixtures & Fittings
* Quality Land in a Prime Location
* Close to Beautiful Beaches & Water Activities

Build with New Zealand’s Trusted Home Builder – Stonewood Homes

Ready to make Opotiki your home by the beach? Call Sally on 027 296 1523 now to find out exactly what this fantastic package includes and how we can make your dream coastal home a reality with Stonewood Homes!

"*" indicates required fields

Select up to three products to compare.