Great Value , 4 Bed Package - Warkworth Ridge

Address LOT 24 Warkworth Ridge, Warkworth, Rodney, Auckland
Phone Number John French - 021598665
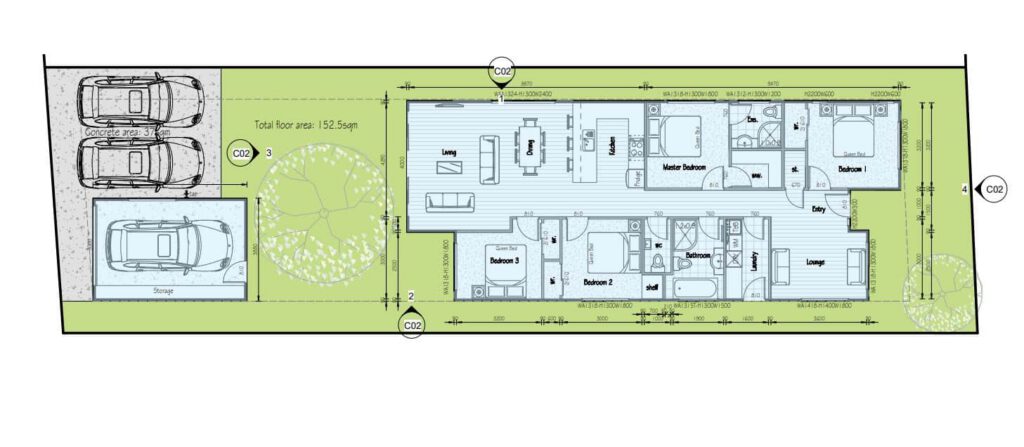
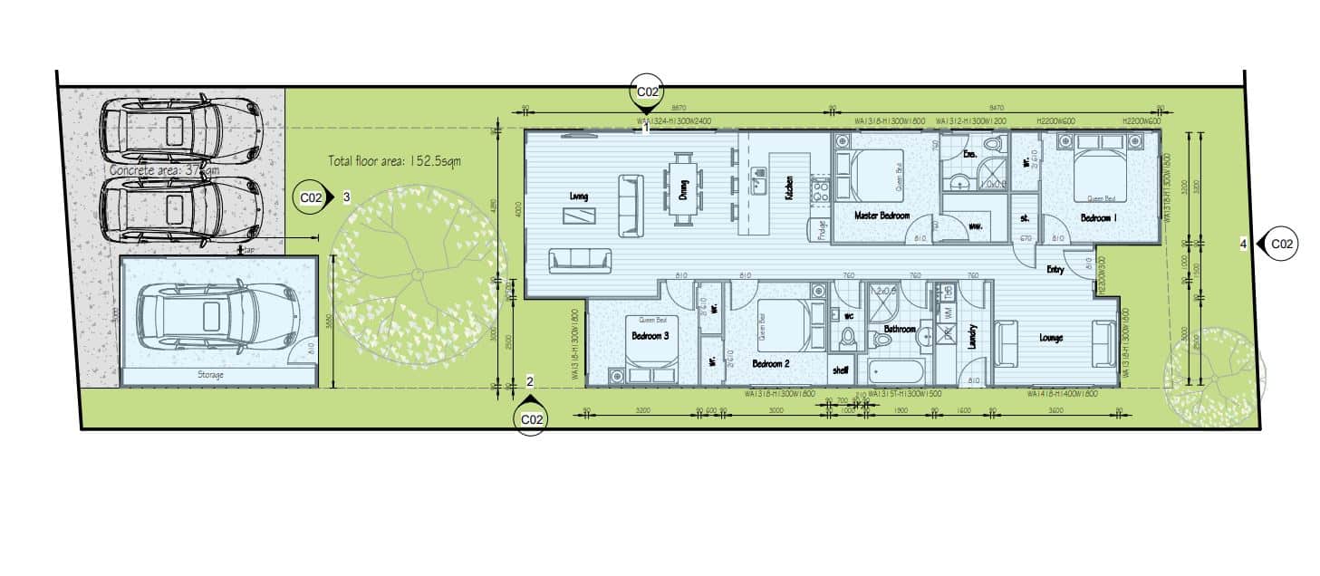
House Size 153m2
Property Size m2
4
2
1
1

Great Value , 4 Bed Package - Warkworth Ridge

Property type
House

In the area
Warkworth School, Mahurangi College, Matakana Farmers Market, Omaha & Tãwharanui Regional Park

Property ID#
IIU112

Agency reference
Custom

Built by Stonewood Homes this is a great entry-level home and land package now available for sale.

TURNKEY CONSTRUCTION LOANS – so you want a turnkey build with no interest payments during the build. Stonewood has access to an incredible New Build Finance product.

This is first tier main bank lending so talk to us talk to us we will refer you to our third-party broker who can advise you.

This is a quality build with quality specifications like stone benchtops and quality flooring. Includes a Master Build Guarantee

The main dwelling features an open plan kitchen and living area with stone benchtops and dining/living space, plus a separate lounge, 4 bedrooms, includes ensuite for the main bedroom, 2 bathrooms, includes ensuite off the main.
The garage is a single and includes the laundry side entrance. Includes a paved driveway for 3 cars to park.

NOTE- this plan can be adapted and changed to suit your budget and lifestyle. Get involved with colour, kitchen flooring selections and put your design stamp on this property.

Titles are out in November so no delays with the build.

Now only 25mins drive from Albany to Warkworth Ridge (off peak), living in Warkworth is a real option. Warkworth Ridge is officially the largest and most comprehensive new neighbourhood in the Auckland / Rodney region. Warkworth School (Primary school) Mahurangi College (Secondary School) Matakana Farmers Market, Access to beautiful East Coast beaches such as Omaha & Tãwharanui Regional Park

This newly master-planned community offers access to excellent local amenities with all the benefits of new home living that won’t break the bank.

Great Value , 4 Bed Package - Warkworth Ridge

Property type
House

In the area
Warkworth School, Mahurangi College, Matakana Farmers Market, Omaha & Tãwharanui Regional Park

Property ID#
IIU112

Agency reference
Custom

Built by Stonewood Homes this is a great entry-level home and land package now available for sale.

TURNKEY CONSTRUCTION LOANS – so you want a turnkey build with no interest payments during the build. Stonewood has access to an incredible New Build Finance product.

This is first tier main bank lending so talk to us talk to us we will refer you to our third-party broker who can advise you.

This is a quality build with quality specifications like stone benchtops and quality flooring. Includes a Master Build Guarantee

The main dwelling features an open plan kitchen and living area with stone benchtops and dining/living space, plus a separate lounge, 4 bedrooms, includes ensuite for the main bedroom, 2 bathrooms, includes ensuite off the main.
The garage is a single and includes the laundry side entrance. Includes a paved driveway for 3 cars to park.

NOTE- this plan can be adapted and changed to suit your budget and lifestyle. Get involved with colour, kitchen flooring selections and put your design stamp on this property.

Titles are out in November so no delays with the build.

Now only 25mins drive from Albany to Warkworth Ridge (off peak), living in Warkworth is a real option. Warkworth Ridge is officially the largest and most comprehensive new neighbourhood in the Auckland / Rodney region. Warkworth School (Primary school) Mahurangi College (Secondary School) Matakana Farmers Market, Access to beautiful East Coast beaches such as Omaha & Tãwharanui Regional Park

This newly master-planned community offers access to excellent local amenities with all the benefits of new home living that won’t break the bank.

"*" indicates required fields

Select up to three products to compare.