Fabulous opportunity awaits astute buyers
From $1,800,000
22 Pohutukawa Drive, Athenree, Western Bay Of Plenty, Bay Of Plenty
Sally Chiplin - 0272961523
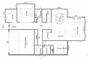
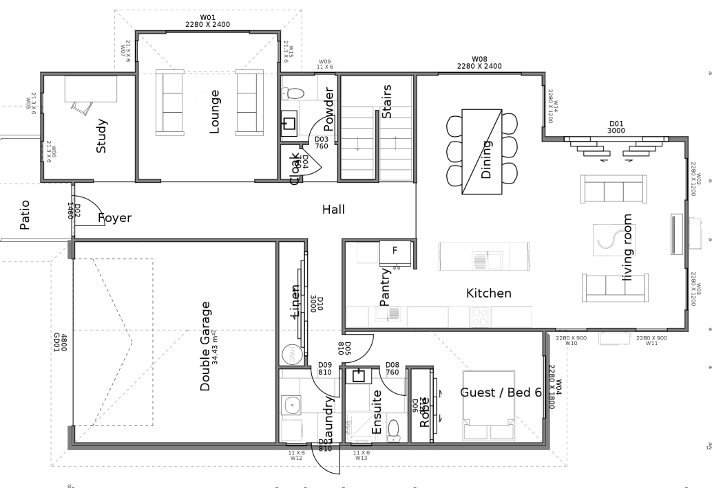
House Size 300m2
Property Size 822m2
6
3
2
2




