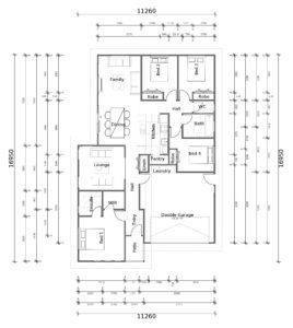
House & Land Package in Peacocke Subdivision
From $999,000
Peacocke Waikato
Vience Nanthasack - 027 237 9978
House Size 161m2
Property Size 400m2
3
2
1
2




