Exceptional Value in Taahunui Rise, Peacocke Subdivision
From $999,000
Peacocke Waikato
Vience Nanthasack - 027 237 9978
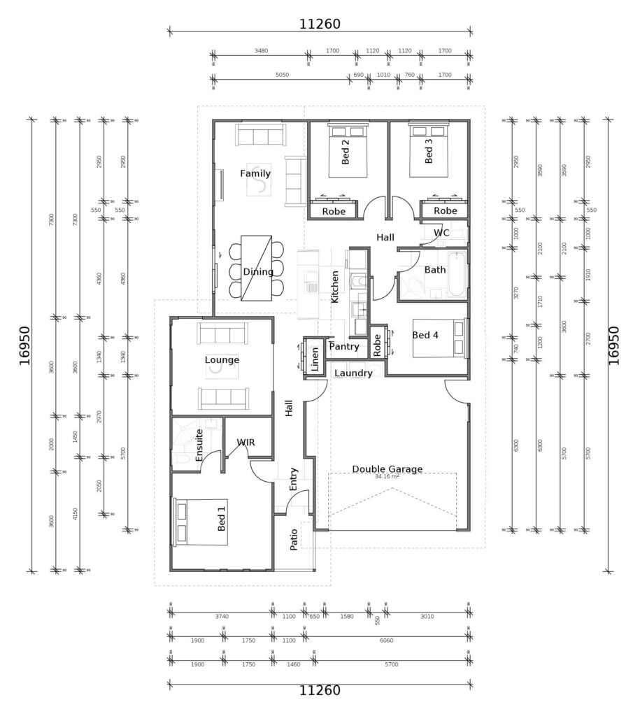
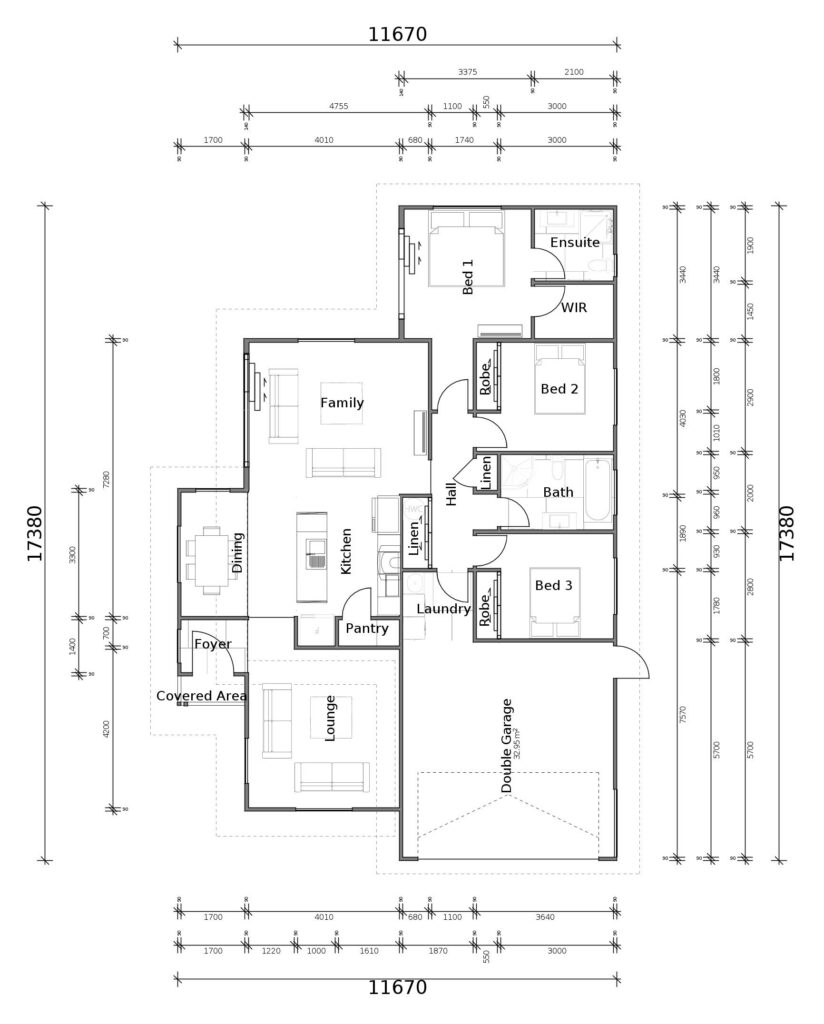
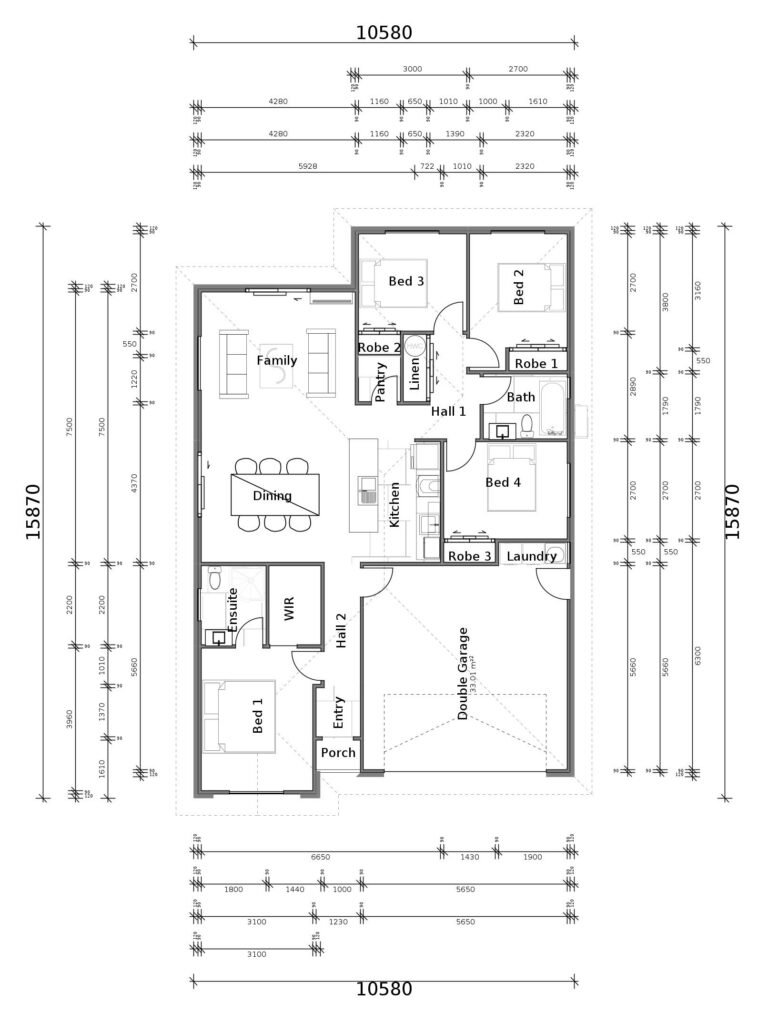
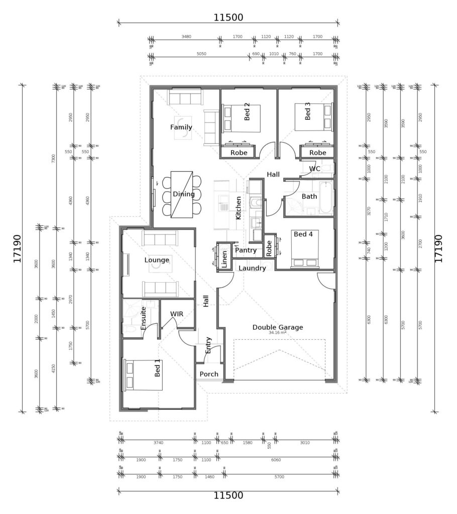
House Size 161m2
Property Size 400m2
3
2
1
2




