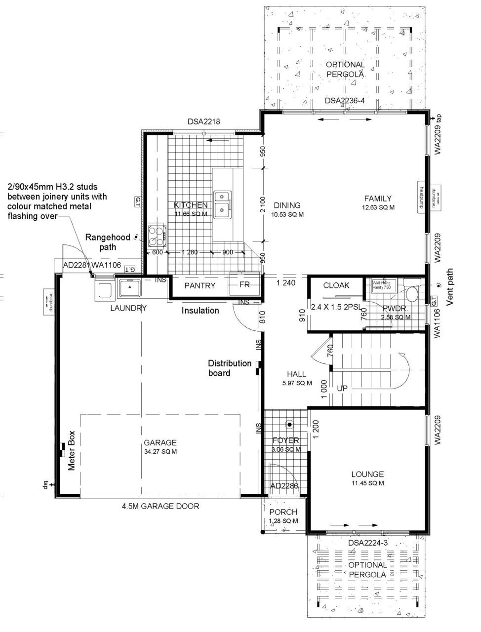
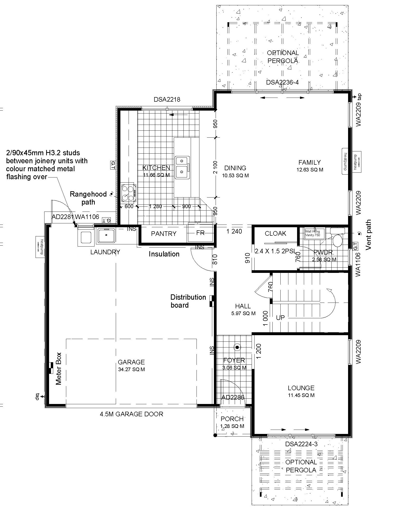
Effortless Living with Modern Flair - Your Te Awamutu Lifestyle Starts Here
From $1,250,000
Lot 11, Greenhill Drive, Te Awamutu
Margaret Kirk - 0272811220
House Size 205m2
Property Size 660m2
4
2
2




