Defined Living Spaces at Conmara Estate, Clevedon
From $1,800,000
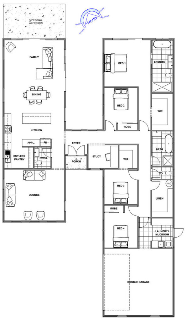
The Pavilion 2.0 beautifully combines classic elegance with modern comfort. Its thoughtfully designed interior features clearly defined living spaces. The open-plan kitchen and living areas flow seamlessly into an alfresco space. The private master suite includes a spacious ensuite and a walk-in robe. Additional bedrooms and a shared bathroom provide ample space for family growth and lifestyle flexibility.
Lot 29, Conmara Estate, Clevedon
Amanda McIntyre - 0212411471
House Size 250m2
Property Size 882m2
4
2.5
1
2





