House & Land Package in Athenree, Western Bay Of Plenty

From $1,070,000

Address 87 Athenree Road, Athenree, Western Bay Of Plenty, Bay Of Plenty
Phone Number Sally Chiplin - 0272961523
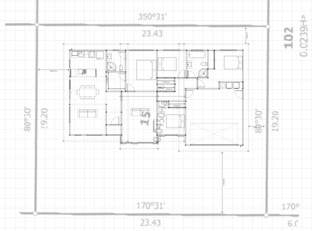
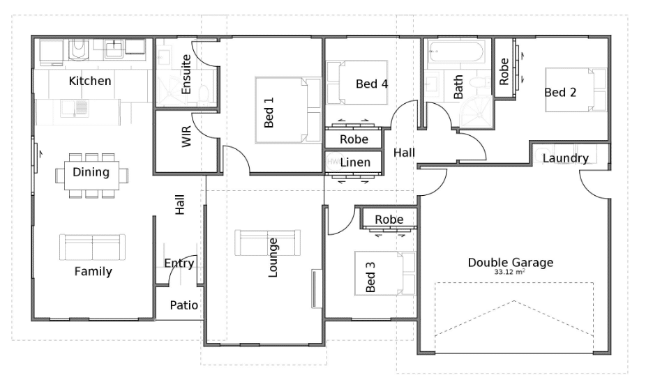
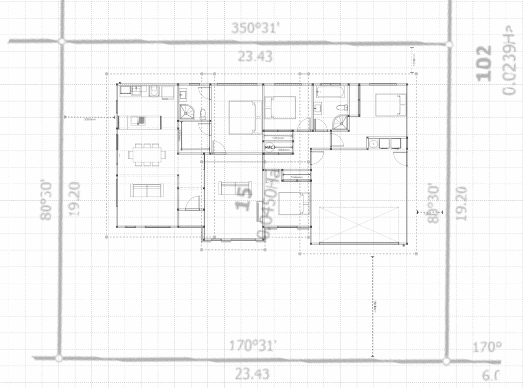
House Size 161m2
Property Size 450m2
4
2
1
2

House & Land Package in Athenree, Western Bay Of Plenty

Are you dreaming of building your ideal home in the lovely Athenree community?

This home has been designed to receive sunlight all day long. We offer the perfect combination of comfort and luxury, following our Stonewood Homes specifications that will truly delight you.

You will have the opportunity to view this home through our design studio, where we bring your plan to life and make real-time modifications. Don’t miss out on this opportunity to build your ideal home.

Contact us today to discuss your options and book a design studio appointment If you wish to build on other sites, call me to discuss design options.

Our new Stonewood Homes team are experienced professionals ready to make your vision a reality. From custom designs to quality construction, we’re committed to delivering homes that exceed expectations.

Contact us today to begin the journey of building your perfect home and check out our design studio, where we can make all the design changes in front of you while we discuss various modifications and visualize your dream.

The land is purchased through Raine and Horne, check this link to see the subdivision and pricing.

https://www.trademe.co.nz/a/property/residential/sections-for-sale/bay-of-plenty/western-bay-of-plenty/athenree/listing/4631704879

If you have questions, call us today, we are here to help.

ABOUT THE AREA

Enjoy kayaking, coastal walks, and leisure fishing at Waihi Beach or Anzac Bay in Bowentown. After swimming, snorkel at Shelly Bay or relax in the holiday park’s hot pools. A Montessori daycare is within walking distance.

House & Land Package in Athenree, Western Bay Of Plenty

Are you dreaming of building your ideal home in the lovely Athenree community?

This home has been designed to receive sunlight all day long. We offer the perfect combination of comfort and luxury, following our Stonewood Homes specifications that will truly delight you.

You will have the opportunity to view this home through our design studio, where we bring your plan to life and make real-time modifications. Don’t miss out on this opportunity to build your ideal home.

Contact us today to discuss your options and book a design studio appointment If you wish to build on other sites, call me to discuss design options.

Our new Stonewood Homes team are experienced professionals ready to make your vision a reality. From custom designs to quality construction, we’re committed to delivering homes that exceed expectations.

Contact us today to begin the journey of building your perfect home and check out our design studio, where we can make all the design changes in front of you while we discuss various modifications and visualize your dream.

The land is purchased through Raine and Horne, check this link to see the subdivision and pricing.

https://www.trademe.co.nz/a/property/residential/sections-for-sale/bay-of-plenty/western-bay-of-plenty/athenree/listing/4631704879

If you have questions, call us today, we are here to help.

ABOUT THE AREA

Enjoy kayaking, coastal walks, and leisure fishing at Waihi Beach or Anzac Bay in Bowentown. After swimming, snorkel at Shelly Bay or relax in the holiday park’s hot pools. A Montessori daycare is within walking distance.

"*" indicates required fields

Select up to three products to compare.