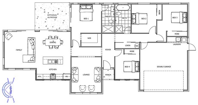
4-Bedroom Modern Home with Privacy and Panoramic Outlooks
From $970,000
113b Mount view Rd, Bastia Hill
Jeffery Glynn - 027 333 2220
House Size 190m2
Property Size 921m2
4
2
2




