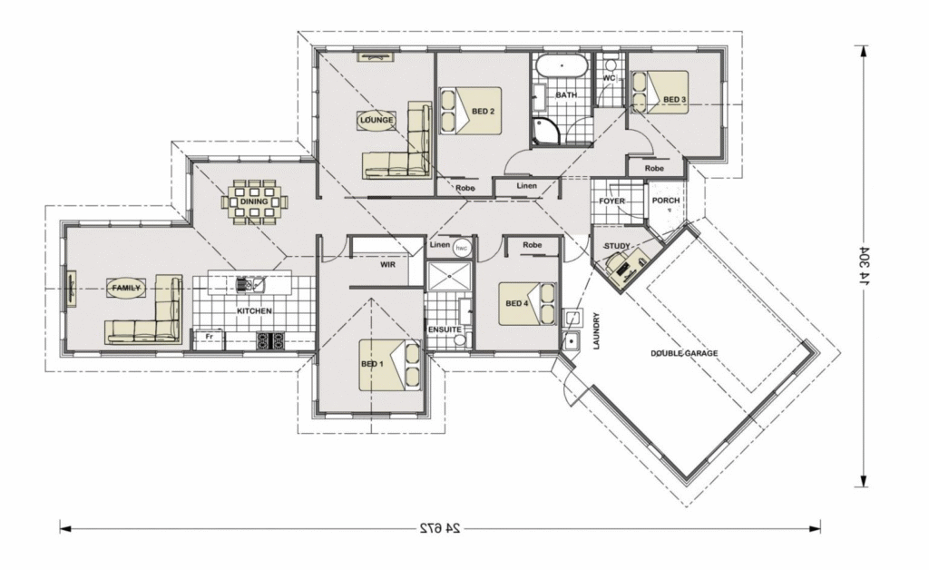
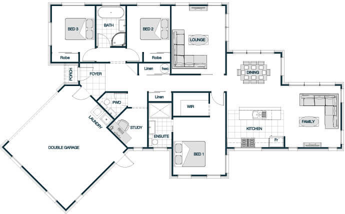
Richmond Bay Mono
Richmond Bay Spacious Interiors, Elegant Exteriors
The Richmond Bay Mono Roof plan offers a sleek, modern aesthetic with its single-slope roofline. This design maximizes natural light, creating a bright and airy atmosphere throughout the home. The open-plan living area seamlessly integrates the kitchen, dining, and lounge spaces, making it ideal for both relaxation and entertaining. With well-sized bedrooms, including a master suite with an ensuite bathroom, the layout ensures comfort and privacy. The minimalist roof design not only enhances the home's contemporary appeal but also contributes to its energy efficiency.




