Martinborough Mono
Martinborough Spacious Living, Timeless Design
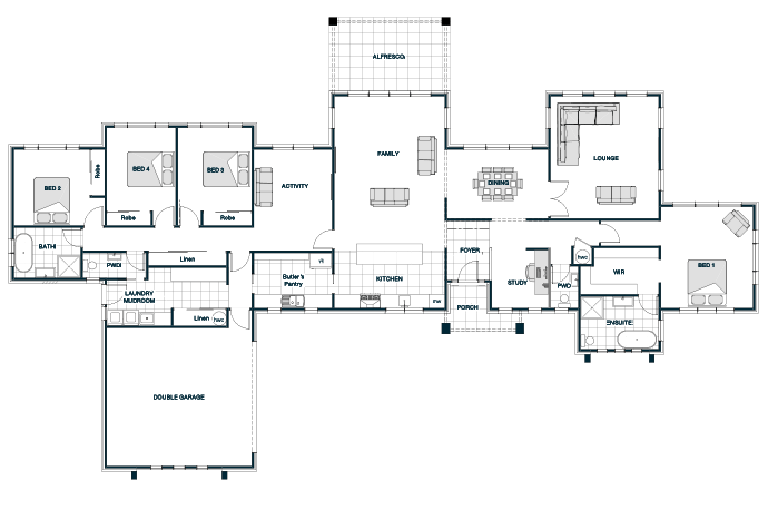
The Martinborough Mono Roof plan showcases a clean, modern single-slope roof that complements its spacious and open interior layout. Designed for seamless living, it features a generous open-plan kitchen, dining, and lounge area perfect for family gatherings and entertaining. With well-appointed bedrooms and flexible spaces, this home offers both comfort and functionality. The mono roof not only adds a contemporary aesthetic but also maximizes natural light, creating a bright and inviting atmosphere throughout.
Sizes(sqm)
4
2.5
1
2




