Castle Park Hip
Castle Park Where Grandeur Meets Function
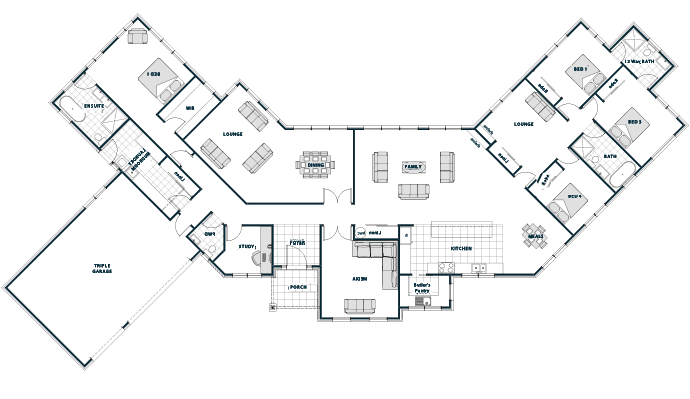
The Castle Park Hip is a traditional home, frounded in brick cladding and simple clean roof structure. It is an expansive home designed for those who love to entertain and live large. With floor plans ranging from 365m to 496m , it includes 4 to 6 bedrooms, 3.5 bathrooms, and up to 4 living areas. Its distinctive layout features wings that curve inward, creating a sense of shelter, privacy, and architectural drama. This home is an entertainers dream with formal and casual dining options and great indoor, outdoor flow.
Sizes(sqm)
4
3.5
1
3
6
3.5
1
4




