Fairhill 2.0 Hip
Fairhill Timeless Appeal, Everyday Ease
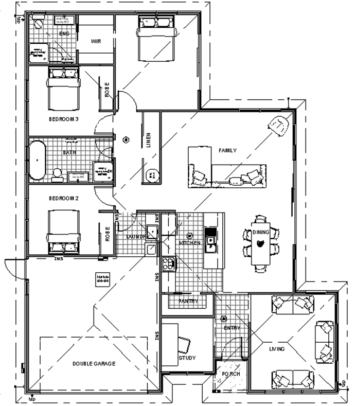
The Hip roof adds a soft, inviting silhouette to the Fairhill 2.0. The floor plan creates natural zones for living, dining, and relaxation, complemented by a spacious kitchen and separate lounge. Four well-sized bedrooms offer privacy and convenience, with the master suite thoughtfully positioned at the rear.
Sizes(sqm)
4
2
1
2
4
2
1
2
3
2
1
2




